Wohnzentrum Rühner Landweg 25, Bützow

Wohnzentrum Rühner Landweg 25, Bützow

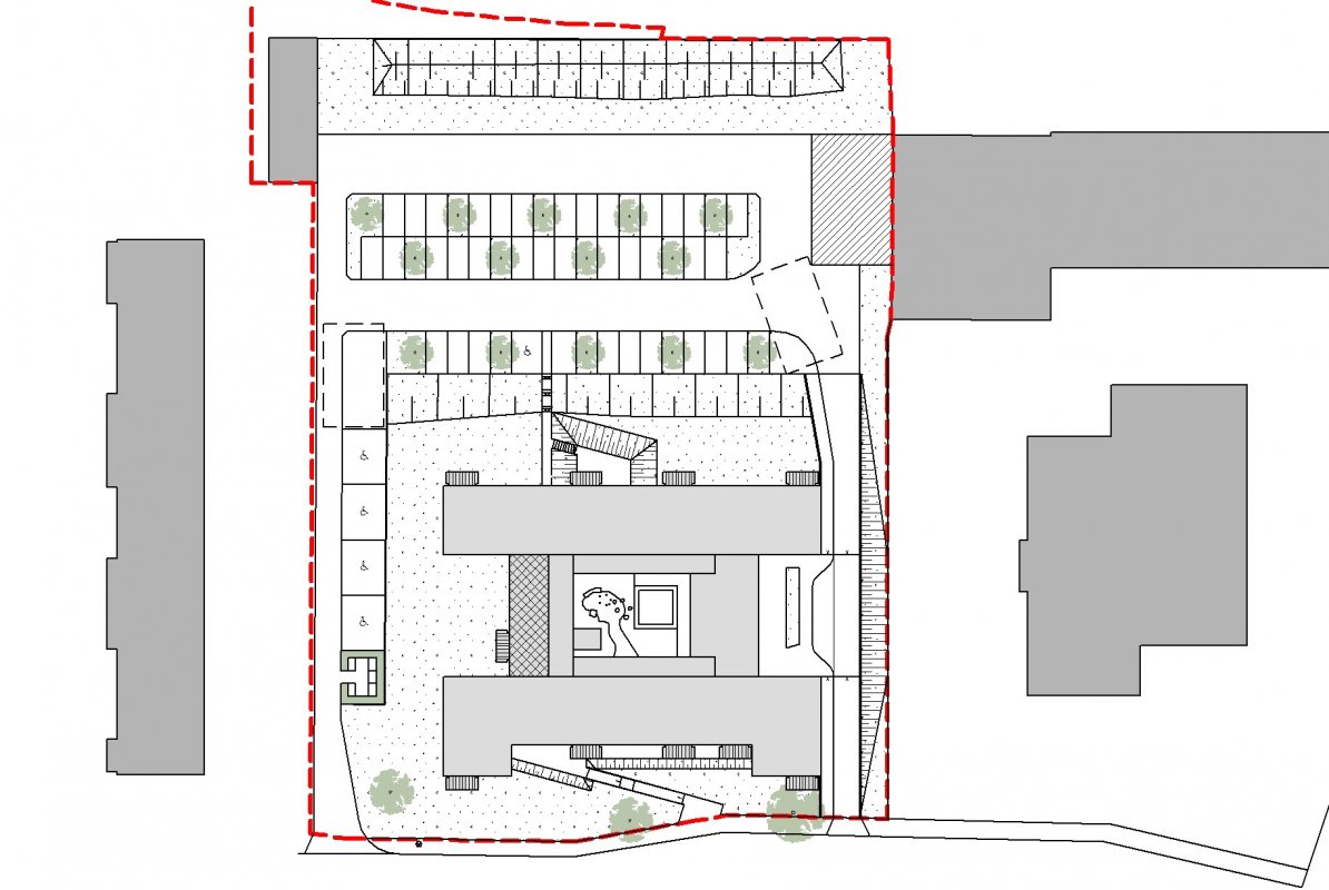
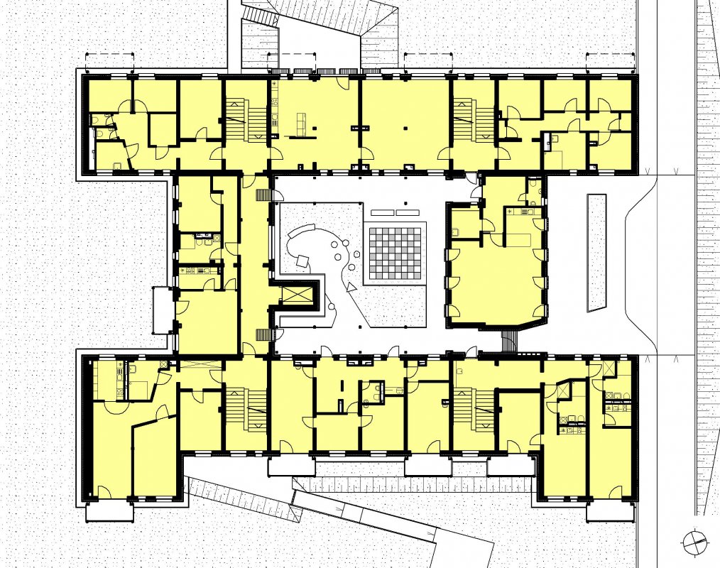
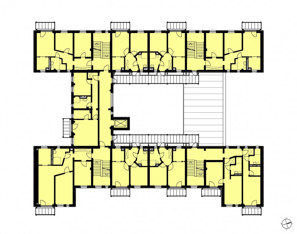
Sanierung und Umbau einer Plattenbauschule 26-UR mit Umnutzung in ein Senioren-Wohnzentrum 33 WE nach DIN 18025 Teil 1+2 und einer Tagespflege, sowie 3 Gewerbeeinheiten

Location Bützow

Construction time 11.2012 - 04.2014
Building owner Bützower Wohnungsgesellschaft mbH

Gross tonnage 14.675 m³
Total area 4.020 m²
Construction costs approx. 4.500.000 €

Wohnzentrum Bützow
Wohnzentrum Bützow
Wohnzentrum Bützow
Wohnzentrum Bützow
Wohnzentrum Bützow
Wohnzentrum Bützow
Wohnzentrum Bützow
Wohnzentrum Bützow