Neubau Regionale Schule, Stralendorf

Neubau Regionale Schule, Stralendorf

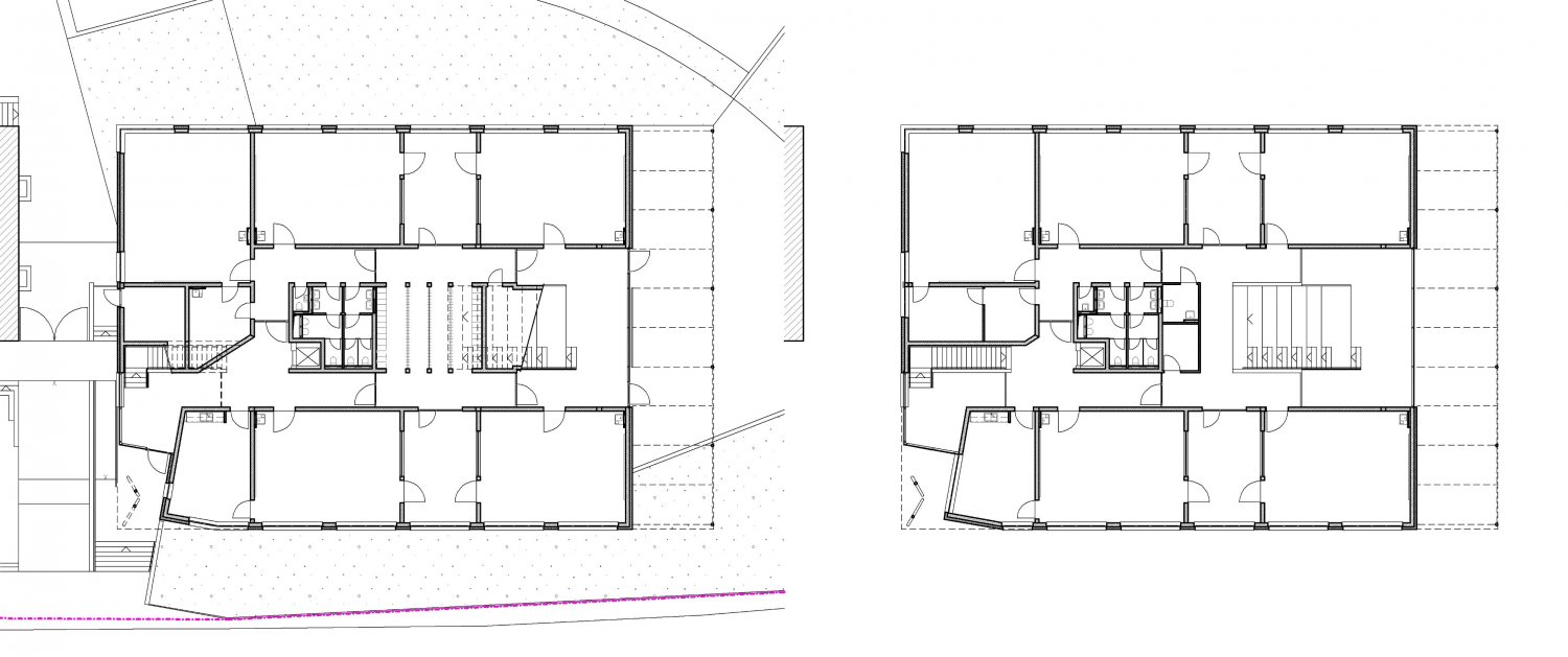
2-geschossiger Erweiterungsneubau als eigenständiges Solitärgebäude für die 4-zügige Orientierungsstufe mit insgesamt 200 Kindern in den Klassen 5+6. Barrierefreie Verbindung zum Bestandsgebäude sowohl im EG als auch OG als Grundlage des Gebäudekonzepts vorbereitet

Location Stralendorf

Construction time 05.2020 - 07.2022
Building owner Amt Stralendorf

Gross tonnage 5.662 m³
Total area 1.249 m²
Construction costs approx. 4.275.000 €

Neubau Regionale Schule, Stralendorf
Neubau Regionale Schule, Stralendorf
Neubau Regionale Schule, Stralendorf
Neubau Regionale Schule, Stralendorf
Neubau Regionale Schule, Stralendorf
Neubau Regionale Schule, Stralendorf
Neubau Regionale Schule, Stralendorf
Neubau Regionale Schule, Stralendorf
Neubau Regionale Schule, Stralendorf