
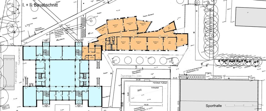
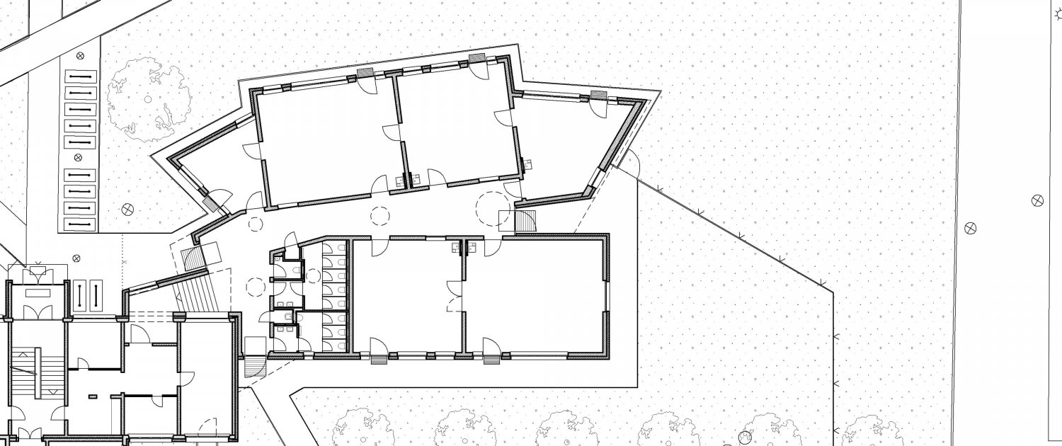
Elblandgrundschule, Wittenberge - Neubau Horterweiterung
1-geschossiger Erweiterungsneubau als Anbau an das vorhandene Schulgebäude von 1977 als räumliche Ergänzung der vorhandenen Einrichtung mit insgesamt 196 Kindern. Baumaßnahme bei laufendem Betrieb
Details
Location Wittenberge
Construction time 08.2021 - 07.2022
Building owner Stadt Wittenberge
Gross tonnage 1.806 m³
Total area 400 m²
Construction costs approx. 1.452.000 €





