14. Januar 2026
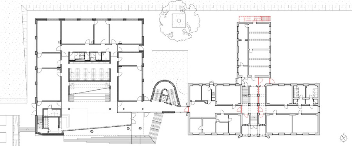
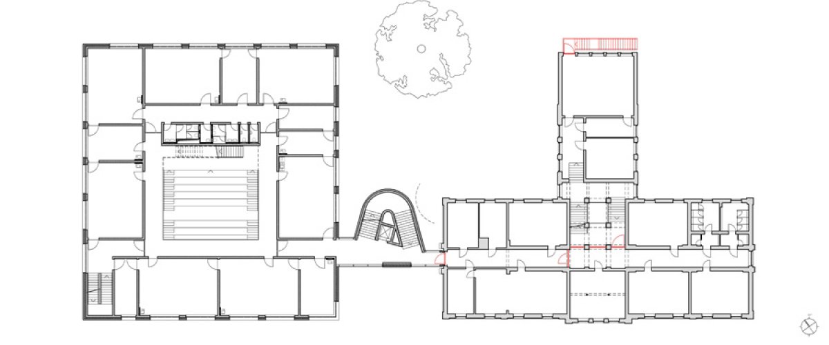
Vorstellung der Entwurfsplanung und Kostenberechnung sowie der Ausführungsplanung im Bauausschuß - Neubau der Schülerspeisung, Neukloster - Im Kontext des denkmalgeschützten Areals “Schulcampus” entsteht ein 1-geschossiges, quadratisches Gebäude für einen Kochbetrieb von 600 Essen/Tag und max. 128 Sitzplätzen, Gestaltung analog zum Erweiterungsneubau der Regionalen Schule - Bauzeit voraussichtlich 06.2026 bis 12.2027
17. Dezember 2025
Veröffentlichung des im August 2025 fertiggestellten Erweiterungsneubaus der Regionalen Schule, Neukloster in der fabroinfo 12.2025, herausgegeben von der FABROMONT AG, CH-3185 Schmitten, Printauflage: 31.000 Exemplare Prospekt als PDF-Datei herunterladen

03. Dezember 2025
Vorstellung Ausführungsplanung und Kosten aus bepreisten Leistungsverzeichnissen im Bauausschuss - Regionale Schule, Neukloster - I. + III.BA, Teilsanierung denkmalgeschütztes Bestandsgebäude von 1874
Bewerbungen ausschließlich per E-Mail an
jobs_at_arslab.de.
Bewerbungen ohne persönliches, aussagekräftiges Anschreiben werden nicht berücksichtigt.